杜冬冬优梵装饰设计...
2025-10-18
林泽宇之外建筑设计...
2025-10-16
胡焕智回形针(江西)设...
2025-10-13
骆珊珊旭晨齐建构设...
2025-09-28
阿木M&D23设计创始...
2025-08-29
理享设计联合创始人...
2025-08-25
余安设计创始人张安...
2025-08-23
邱小丹优梵设计创始...
2025-08-22
杜冬冬
优梵装饰设计总监
项目名称:云·起
项目地址:江西南昌
主案设计:杜冬冬
设计公司:优梵装饰
项目面积:149平米
竣工时间:2024.11
设计风格:意式极简
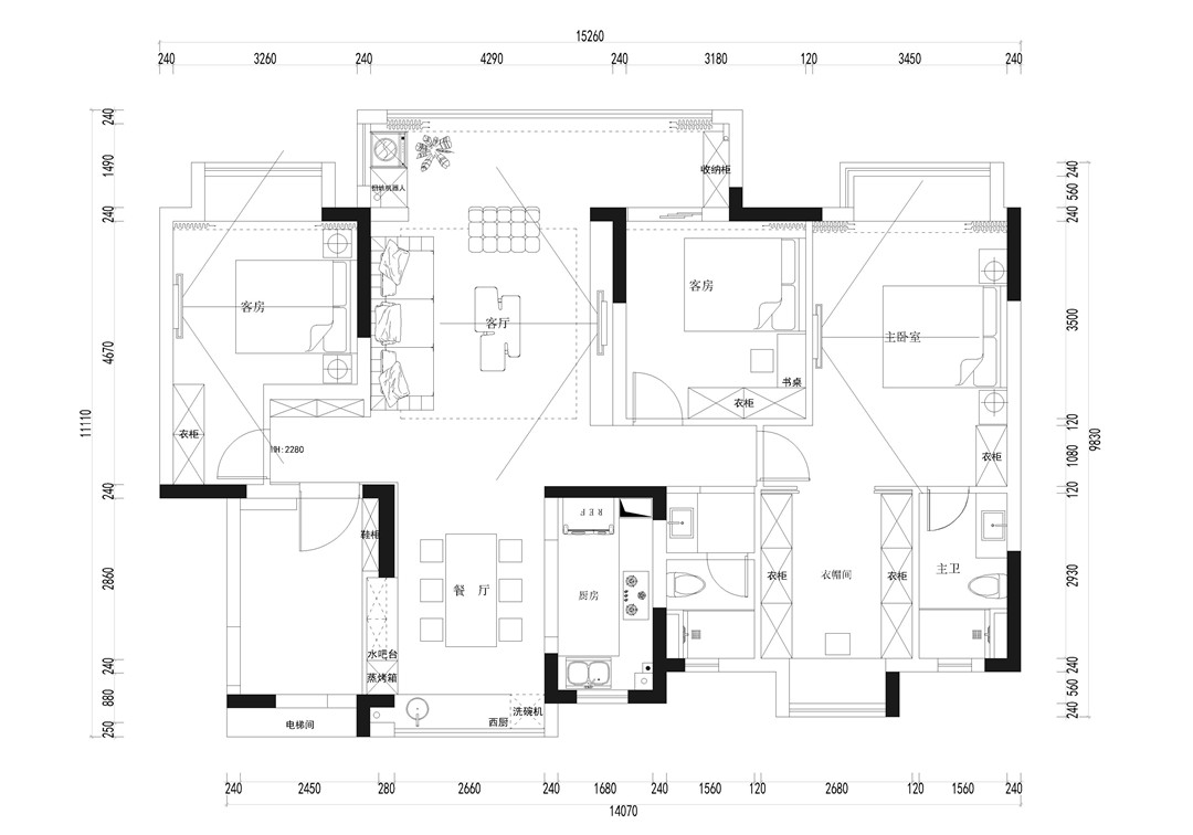
◎平面布置图
设计师以意式极简风格为核心,剥离冗余装饰,以 “纯粹线条、高级质感、功能秩序” 为设计语言,打造出一处简雅高级、充满意式美学张力的现代居所,让 “极简形式” 与 “雅致生活” 在空间中自然交融。
客厅以浅灰色皮质沙发为视觉焦点,线条流畅如雕塑,尽显意式家具的 “艺术感与舒适性”;深色木饰面背景墙采用天然木纹材质,纹理纯粹且富有层次,为空间注入温暖质感;大理石茶几以简洁造型呈现,肌理自然且张力十足,成为空间的 “质感点缀”。
餐厅采用开放式布局,长形餐桌搭配简约餐椅,营造松弛且有序的用餐氛围。餐桌以简洁造型突出材质质感,与整体风格一脉相承;厨房以深灰色橱柜为主,线条利落、布局规整,嵌入式电器设计最大化利用空间,既体现意式极简对 “秩序感” 的追求,又满足厨房 “高效实用” 的功能需求,让烹饪与用餐场景自然互动。
主卧以 “柔和色调 + 精致细节” 构建休憩空间:皮质床头线条流畅,深色柜体造型简洁,木质地板纹理自然,三者搭配营造出静谧雅致的睡眠氛围;空间无冗余装饰,仅以必要的功能家具(床、床头柜、衣柜)布局,让
“休憩” 成为空间的核心功能,尽显意式极简的 “克制与优雅”。
摒弃华丽装饰,通过简洁的几何线条、纯粹的色彩搭配、精致的材质肌理,塑造出高级且富有艺术感的空间气质;同时,强调 “功能与美学的共生”,让每一处设计既符合意式风格的优雅秩序,又满足现代生活的实用需求,诠释 “简而不凡” 的居住哲学。