林泽宇之外建筑设计...
2025-10-16
胡焕智回形针(江西)设...
2025-10-13
骆珊珊旭晨齐建构设...
2025-09-28
阿木M&D23设计创始...
2025-08-29
理享设计联合创始人...
2025-08-25
余安设计创始人张安...
2025-08-23
邱小丹优梵设计创始...
2025-08-22
陈娟爱维空间设计创...
2025-08-16
林泽宇
之外建筑设计创始人
项目名称:MUMU FIT
项目地址:江西丰城
主案设计:林泽宇
设计公司:之外建筑设计
项目面积:330平米
竣工时间:2024.12
设计风格:简约
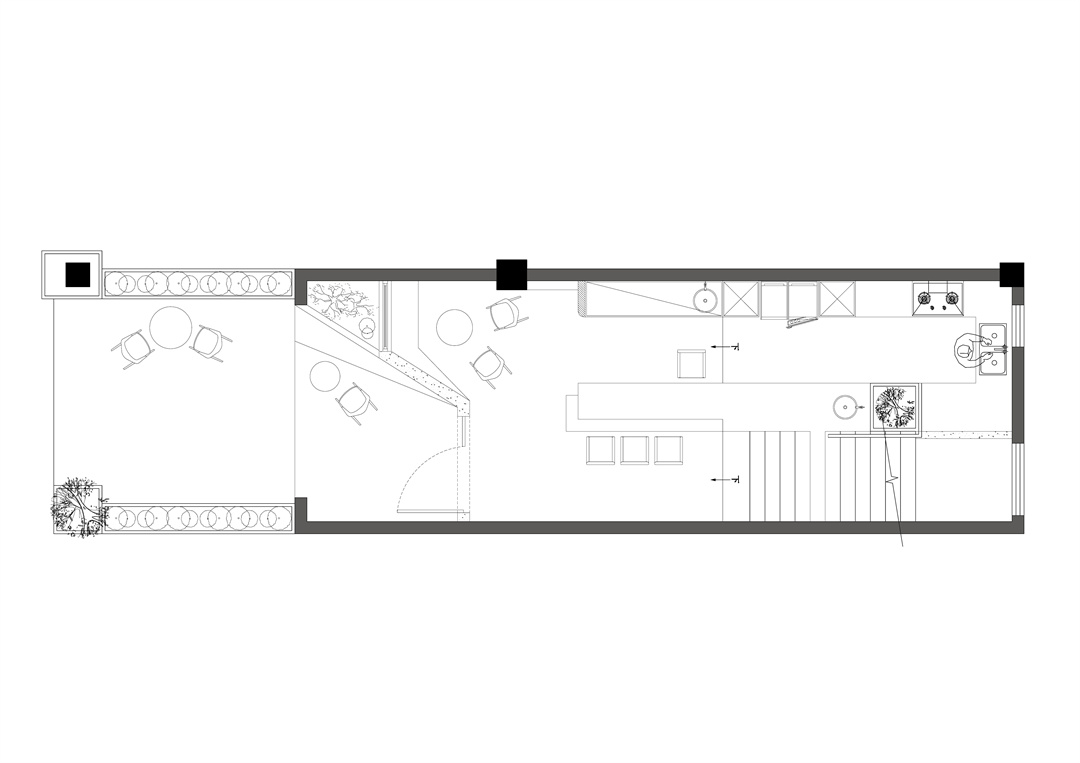
◎一层平面布置图
MUMU FIT 为一家只为女性打造的健身空间,在空间考量上更多的是寻求一种极具生命力的静态流动,让空间带来极致的静谧与归属感。
在空间运用上,采用曲线去让空间更具延伸感,引用芭蕾舞者体态原型去打造空间曲线动线,同时让一个空间去做另一个空间的背景,每个空间之间,既有分割,又相互贯通,让每位健身女性在空间中“把身体放在正确的位置”,用心感受生命的张力,在呼吸之间达到力与美的更好平衡。
开放式的布局将空间视野纵横拉伸,运动空间的通透感,更好的拉近人与人之间的距离,整个空间以白色为主,让每一位女性健身者都成为这净白空间的主角,美学与社交融合,阶梯式休息区轻松引导健身者的交流,自由且随性的社交场域。
整个空间材料主要使用乳胶漆及镜子,大块镜面模糊了空间的界限,串连起环环衔接的功能场景叙事线,营造出一个充满活力与动态性的氛围,激发运动带来的愉悦。
波浪形台阶式休息区,以水磨石材质搭配内嵌灯带,形成温暖的 “社交角落”。艺术感十足的黑白摆件、设计感座椅,让女性在运动间隙自然交流、放松,如同置身艺术展厅般惬意,归属感在细节中悄然建立。
健身区以白色为主调,搭配原木色器械细节,营造纯净、专注的训练氛围。整齐排列的普拉提器械在明亮灯光下,既展现专业度,又通过柔和色彩消解运动压迫感,让女性在优雅中塑造身体线条。
MUMU FIT 的设计,是对女性健身空间的功能满足,更是对女性精神世界的细腻关照。通过色彩、空间、材质的协同设计,它将 “静谧归属感” 与 “生命力流动” 融为一体,让每一位女性在这片专属天地中,既能挥洒运动活力,又能收获心灵归属,真正实现 “在健身中遇见更美的自己”。