扫一扫
扫一扫
胡焕智:岩空间城市展厅

浏览:16370回形针设计2025-10-13

胡焕智

回形针(江西)设计联合创始人


项目名称:岩空间城市展厅
项目地址:江西南昌
项目面积:380平米
竣工时间:2024年8月
主案设计:胡焕智
设计公司:回形针(江西)设计




设计师致力于打破传统展厅模式,以独特的空间设计与巧妙的展示手法,将岩板产品的魅力全方位呈现。通过对空间、材质、色彩和细节的精心雕琢,打造一个集产品展示、艺术体验、文化传播于一体的沉浸式展厅,让每一位参观者深入领略岩板的无限可能。


通透的落地玻璃,一方面增强了室内外的视觉互动,吸引路人目光;另一方面,让自然光线充分进入展厅,为岩板产品的展示提供良好的光照条件 。门前精心布置的绿植景观,为硬朗的建筑外观增添了一抹自然生机,营造出舒适宜人的氛围,引导顾客自然地踏入展厅。



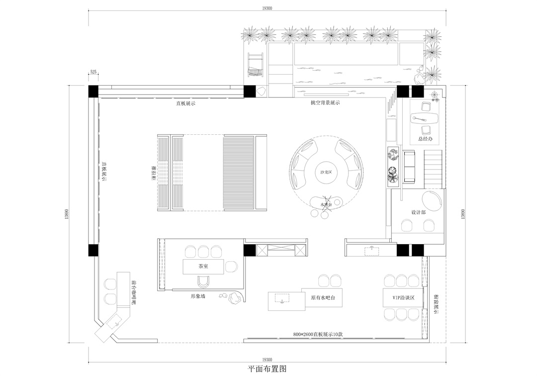
设计师利用卖场一楼的空间优势,形成“挑空”层,使产品展示不受限于层高;回廊式产品展示,通过色彩的区分自然形成空间路径,并加大产品展示量。





博物馆式产品展示区与宽大明高的洽谈区形成鲜明的空间对比。根据岩板的不同纹理、色彩、规格和应用场景,划分多个展示区域。墙面展示区有序排列着各类岩板样品,清晰展现产品细节。用醒目及高级感很强的“宫庭红”岩板做地面,与墙面深色艺术肌理漆形成强烈反差感,让空间变得更有“深度”。


洽谈区位于展厅相对安静的区域,营造舒适、私密的交流环境。摆放造型时尚、舒适的沙发与桌椅,搭配精致的灯具和绿植点缀,让顾客在轻松的氛围中与工作人员深入沟通,了解岩板产品的特性、工艺、价格等信息,方便进一步的业务洽谈与合作。



设计师成功构建出一个独具魅力的岩板展示平台,不仅充分展示了岩空间岩板产品的卓越品质与多元应用,更以沉浸式的体验方式,让参观者感受到岩板带来的美学价值和生活方式变革,有效提升品牌形象与市场竞争力。


战略合作
深度合作
友情媒体